CSV. without STO

Frequency-controlled compact screw compressor CSV. without safe torque off (STO)
Frequency-controlled compact screw compressor CSV. without safe torque off (STO)

Last revision of the wiring diagram:

12.02.2021

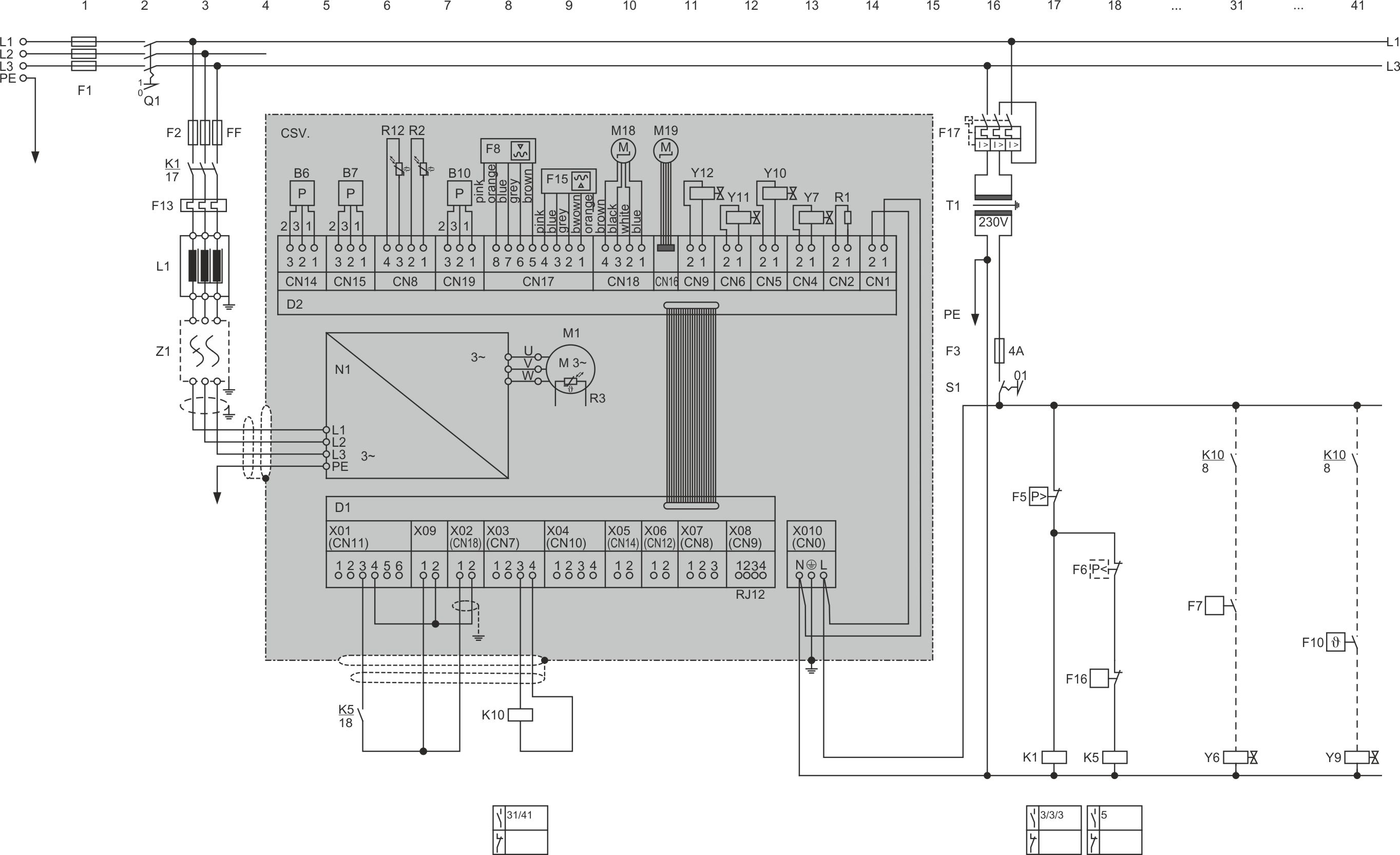
Legend for the CSV. general schematic wiring diagrams

Abbr.

Component

B6

High pressure transmitter ①

B7

Low pressure transmitter ①

B10

Pressure transmitter at cooling plate outlet

D1

Control board of the FI ①

D2

Extension board of the FI ①

F1

Main fuse

F2

Compressor fuse

F3

Control circuit fuse

F5

High-pressure switch

F6

Low pressure switch

F7

Cut-in delay “ECO"

F8

Oil level switch (minimum oil level)①

F10

Control thermostat for oil cooler

F13

Overload protective device

F15

Oil level switch (maximum oil level)

F16

Relay for protective functions upon customer request (frost protection, water flow, etc.)

F17

Control transformer fuse

K1

Compressor contactor

K5

Auxiliary contactor “compressor is ready-to-operate”

K10

Auxiliary relay “compressor is running” (for message to system controller)

L1

Line reactor ②

M1

Compressor motor ①

M18

Electronic evaporator pressure valve for cooling plate

M19

Electronic expansion valve for cooling plate

N1

Frequency inverter (FI) ①

Q1

Main switch

R1

Oil heater ①

R2

Oil temperature sensor (NTC) ①

R3

Temperature sensor in the motor (NTC) ①

R12

Temperature sensor at cooling plate outlet

S1

Control switch (on/off)

T1

Control transformer (example for 230 V, required according to EN60204-1)

Y6

Solenoid valve "ECO"

Y7

Solenoid valve “LI” (option for CSVH) ②

Y9

Solenoid valve “oil cooler line”

Y10

Solenoid valve “FI cooling” ①

Y11

Solenoid valve "Vi slider +" ①

Y12

Solenoid valve "Vi silder -" ①

Z1

RFI filter ②

Component included in the extent of delivery of the compressor

Component can be added as an option to the compressor’s extent of delivery. It can be retrofitted.

Weiterführende technische Dokumente: