HS.B85 Supplement for booster

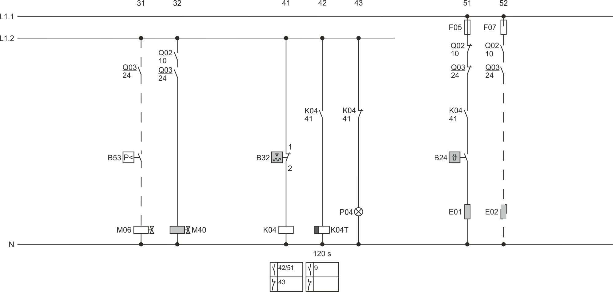
31: ECO operation, optional
32: Solenoid valve for oil injection
41 .. 43: Oil level monitoring
51: Oil heater
52: Terminal box cover heater, optional
Last revision of the diagram:
21.09.2022
Abbr. | Component |
|---|---|
B24 | Oil thermostat |
B32 | Oil level switch at oil separator |
B53 | ECO switch-on |
E01 | Oil heater |
E02 | Terminal box cover heater |
F05 | Fuse of oil heater |
K04 | Auxiliary relay for oil monitoring |
K04T | Time relay for oil level switch |
M06 | SV for economiser (ECO) |
M40 | SV for oil injection |
P04 | Light: oil supply fault |
Q02 | Contactor for first part winding (PW) or main contactor (Y/Δ) or compressor contactor (DOL) |
Q03 | Contactor for second part winding (PW) or delta contactor (Y/Δ) |
Q04 | Star contactor (Y/Δ) |
Technical documents for further information: