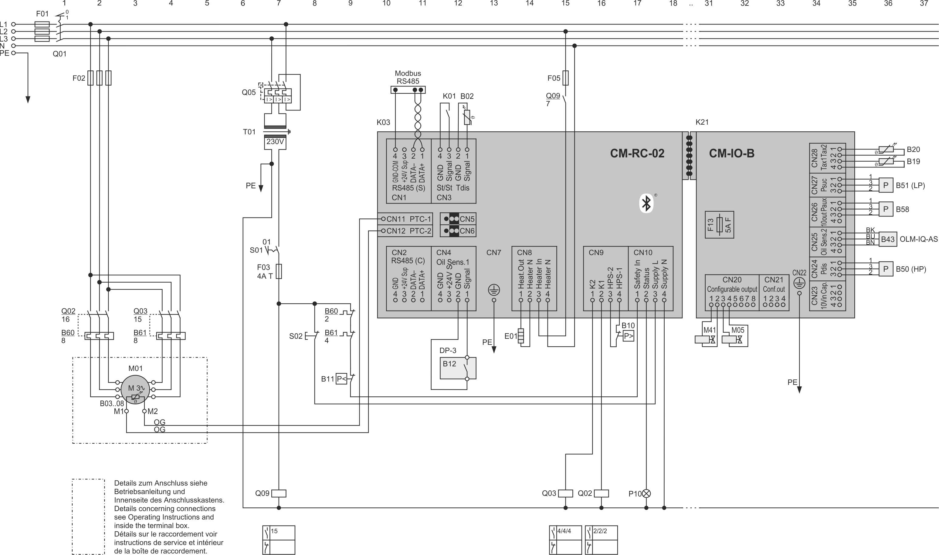
ECOLINE 2-stage with CM-RC-02, PW start

Last revision of the diagram:
25.06.2025
Abbr. | Component |
|---|---|
B02 | Discharge gas temperature sensor |
B03 .. 08 | Temperature sensors in motor windings |
B10 | High pressure switch |
B11 | Low pressure switch |
B12 | Differential oil pressure switch |
B19 | Intermediate pressure gas temperature sensor |
B20 | Suction gas temperature sensor |
B21 | Optional temperature sensor |
B22 | Ambient temperature sensor |
B23 | Cold store temperature sensor |
B30 | Oil level switch |
B43 | Sensor of oil level controller |
B50 | High pressure transmitter |
B51 | Low pressure transmitter |
B57 | Optional pressure transmitter |
B60 | Overload protective device |
B58 | Intermediate pressure transmitter |
B61 | Overload protective device for second part winding |
E01 | Oil heater |
F01 | Main fuse |
F02 | Compressor fuse |
F03 | Control circuit fuse |
F04 | Fuse of compressor protection device or compressor module |
F05 | Fuse of oil heater |
F13 | Device-internal fuse |
K01 | Superior controller |
K03 | Compressor module |
K06 | Fan(s) control module |
K13 | Star-delta switching relay |
K18 | Auxiliary relay: FI outputs power voltage/rotating field for motor |
K19 | Auxiliary relay: safety chain enabled |
K21 | Extension board |
M01 | Compressor motor |
M02 | Additional fan |
M03 | Fan 1 |
M04 | Fan 2 |
M05 | SV for liquid injection with LI, RI or CIC injection valve |
M11 | SV for capacity regulator 1, CR1, CR+, CRII-2 or start unloading |
M12 | SV for capacity regulator 2, CR2, CR- or CRII-1 |
M13 | SV for capacity regulator 3, CR3 or CRII-3 |
M14 | SV for capacity regulator CR4 |
M20 | SV for liquid line |
M41 | SV for oil return |
M50 | Additional fan 2 |
M51 | Fan 3 |
M52 | Fan 4 |
P10 | Light: collective fault |
P20 | Light: system control is ready-to-operate |
P42 | Message: oil return is active |
Q01 | Main switch |
Q02 | Contactor for first part winding (PW) or main contactor (Y/Δ) or compressor contactor (DOL) |
Q03 | Contactor for second part winding (PW) or delta contactor (Y/Δ) |
Q04 | Star contactor (Y/Δ) |
Q05 | Control transformer fuse |
Q09 | Contactor for oil heater |
S01 | Control switch (on-off) |
S02 | Reset of compressor safety chain |
S11 | Door switch |
S12 | Switch for switching from EcoMode to LowSoundMode |
S15 | External signal for capacity control |
T01 | Control transformer (example for 230 V, required according to EN60204-1) |
T02 | Frequency inverter (FI) |
T07 | Power supply device for auxiliary voltage |
The cable colours are noted in accordance with IEC DIN60757.
Technical documents for further information: