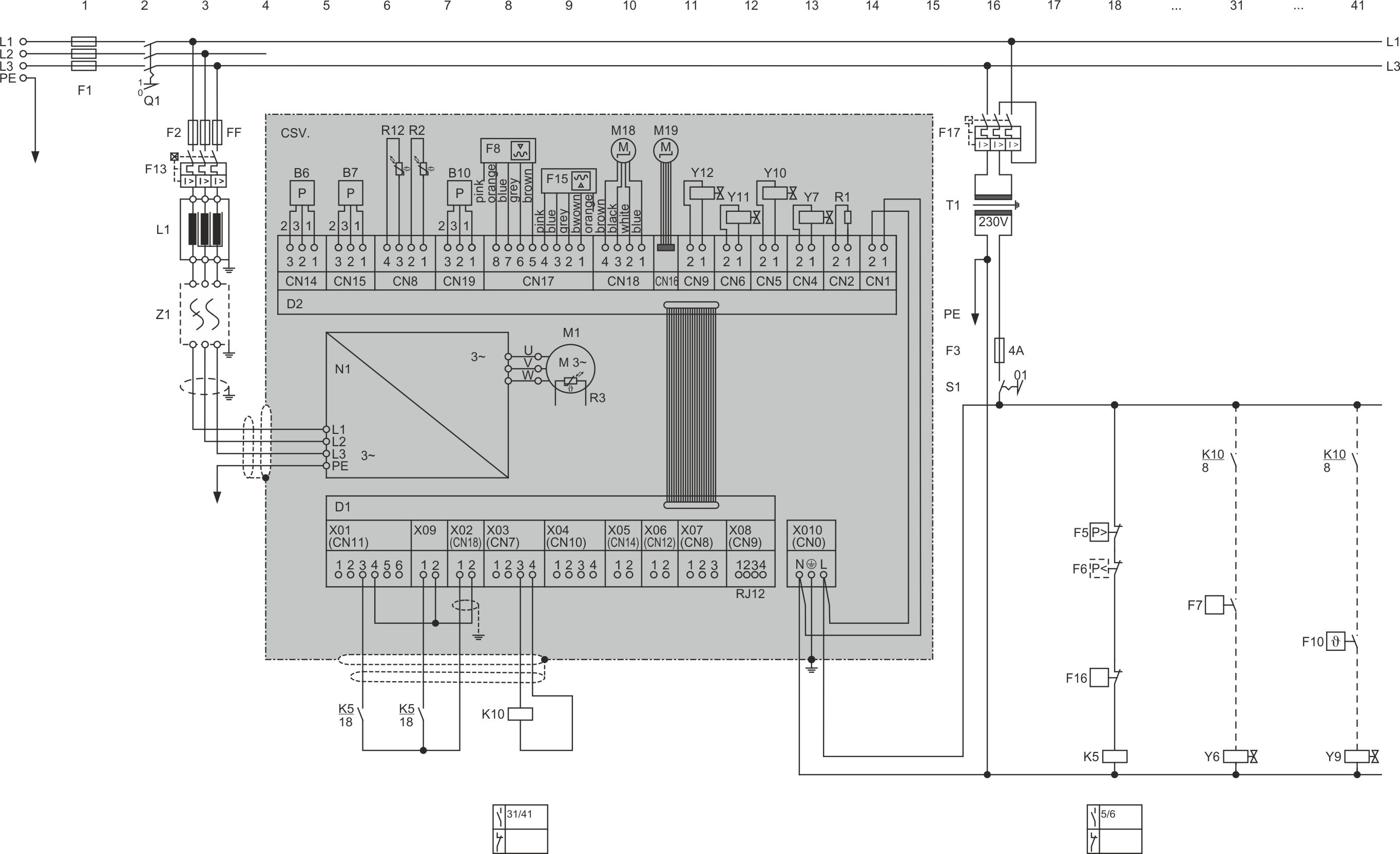
CSV. mit STO
Letzte Bearbeitung des Bilds:
12.02.2021
Abk. | Bauteil | |
|---|---|---|
B6 | Hochdruckmessumformer ① | |
B7 | Niederdruckmessumformer ① | |
B10 | Druckmessumformer am Kühlplattenaustritt | |
D1 | Steuerkarte des FU ① | |
D2 | Erweiterungskarte des FU ① | |
F1 | Hauptsicherung | |
F2 | Verdichtersicherung | |
F3 | Steuerkreissicherung | |
F5 | Hochdruckschalter | |
F6 | Niederdruckschalter | |
F7 | Einschaltverzögerung "ECO" | |
F8 | Ölniveauschalter (minimales Ölniveau) ① | |
F10 | Steuerthermostat für Ölkühlung | |
F13 | Überlastschutzeinrichtung | |
F15 | Ölniveauwächter (maximales Ölniveau) | |
F16 | Relais für Schutzfunktionen nach Kundenwunsch (Frostschutz, Wasserdurchfluss etc.) | |
F17 | Steuertransformatorsicherung | |
K1 | Verdichterschütz | |
K5 | Hilfsschütz "Verdichter ist betriebsbereit" | |
K10 | Hilfsrelais ''Verdichter ist in Betrieb'' (für Meldung an Anlagenregler) | |
L1 | Netzdrossel ② | |
M1 | Verdichtermotor ① | |
M18 | Elektronisches Verdampferdruckventil für die Kühlplatte | |
M19 | Elektronisches Expansionsventil für die Kühlplatte | |
N1 | Frequenzumrichter (FU) ① | |
Q1 | Hauptschalter | |
R1 | Ölheizung ① | |
R2 | Öltemperaturfühler (NTC) ① | |
R3 | Temperaturfühler im Motor (NTC) ① | |
R12 | Temperaturfühler am Kühlplattenaustritt | |
S1 | Steuerschalter (ein/aus) | |
T1 | Steuertransformator (Beispiel für 230 V, erforderlich gemäß EN60204-1) | |
Y6 | Magnetventil "ECO" | |
Y7 | Magnetventil "LI" (Option bei CSVH) ② | |
Y9 | Magnetventil "Ölkühlerleitung" | |
Y10 | Magnetventil "FU-Kühlung" ① | |
Y11 | Magnetventil "Vi-Schieber +" ① | |
Y12 | Magnetventil "Vi-Schieber -" ① | |
Z1 | Hochfrequenzfilter ② | |
① | Bauteil gehört zum Lieferumfang des Verdichters | |
② | Bauteil ist optionaler Lieferumfang des Verdichters. Es kann nachgerüstet werden. |
Weiterführende technische Dokumente:
